Erdgeschoßwohnung Marburg - 1 Zimmer, 45 m², 585€ | Angebot:26136459

Sanierte 1-Zimmer-Wohnung in zentraler Lage

Informationen zur Immobilie:
Zimmeranzahl
1
Ort
35037 Marburg
Objektart
Wohnung
Größe
ca. 45,00 m²
585 €
(zzgl. Nebenkosten)
Kaltmiete
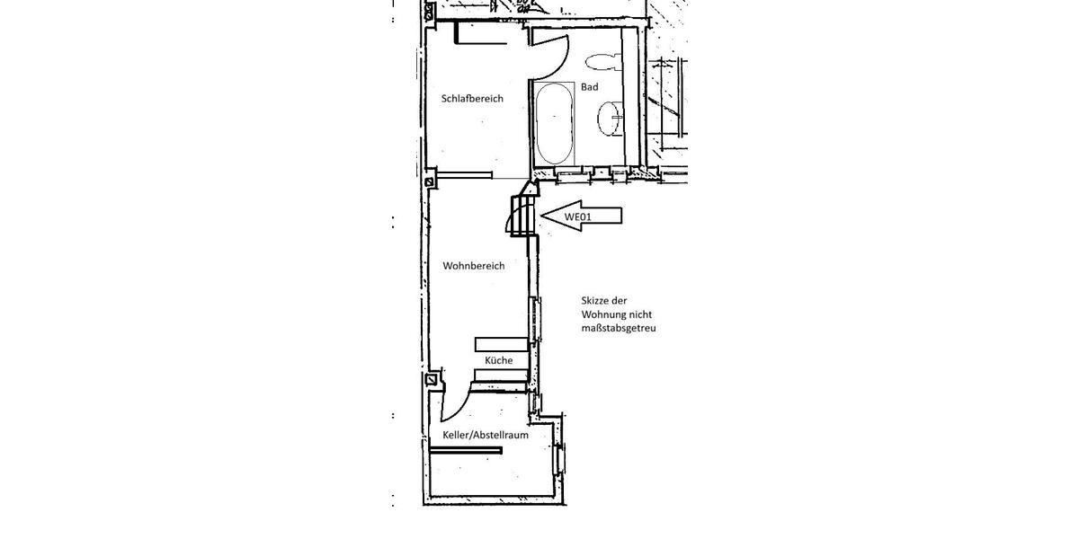
Beschreibung:
Mehr zum Angebot Sanierte 1-Zimmer-Wohnung in zentraler Lage:

*Aufgrund der aktuellern Sanierung liegen keine aktuellen Wohnungsfotos vor!

Die angebotene Wohnung überzeugt durch einen funktionalen Grundriss und eine klare Raumaufteilung. Sie eignet sich ideal für Singles oder Paare, die eine... mehr erfahren
weitere 1 Zimmer Wohnungen
social facebook social youtube social instagram social tiktok

Copyright © 2000 - 2026 | 1A Infosysteme GmbH | Content by: 1A-Anzeigenmarkt.de 30.04.2026