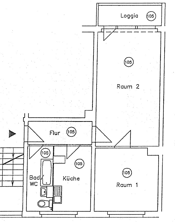
2 Zimmer Wohnung - 400 €
 
 
 
 
 
 
 
 
2-Zimmer-Wohnung mit Balkon im 4. OG
Informationen zur Immobilie:
Zimmeranzahl
2
Ort
01279 Dresden
Objektart
Wohnung
Größe
49,11 m²
Energieausweis
Verbrauchsausweis
Energieeffizienzklasse
C
Energieverbrauchkennwert
83 kWh/(m²·a)
400 €
weitere 2 Zimmer Wohnungen
 
 
 
 
 
 
 
 
 
 
