3 Zimmer Wohnung - 170.000 €
 
 
 
 
 
 
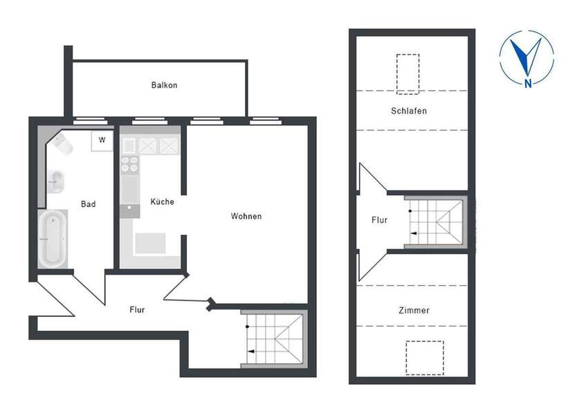
MAISONETTE-TRAUM AM MARIANNENPARK 3-Raum-Wohnung mit Balkon, Tageslichtbad und PKW-Stellplatz
Informationen zur Immobilie:
Zimmeranzahl
3
Ort
04347 Leipzig
Objektart
Wohnung
Größe
76,00 m²
Energieausweis
Verbrauchsausweis
Energieeffizienzklasse
B
Energieverbrauchkennwert
60,1 kWh/(m²·a) kWh/(m²·a)
EPass gültig bis
23.02.2032
170.000 €
Beschreibung:
Mehr zum Angebot MAISONETTE-TRAUM AM MARIANNENPARK 3-Raum-Wohnung mit Balkon, Tageslichtbad und PKW-Stellplatz:
Die ca. 76?m² große Maisonette-Wohnung befindet sich im 4. Obergeschoss und Dachgeschoss eines gepflegten Mehrfamilienhauses und überzeugt mit einer durchdachten Raumaufteilung.
Auf der unteren Ebene befindet sich ein Tageslichtbad mit Wanne... mehr erfahren
Die ca. 76?m² große Maisonette-Wohnung befindet sich im 4. Obergeschoss und Dachgeschoss eines gepflegten Mehrfamilienhauses und überzeugt mit einer durchdachten Raumaufteilung.
Auf der unteren Ebene befindet sich ein Tageslichtbad mit Wanne... mehr erfahren
weitere 3 Zimmer Wohnungen
 
 
 
 
 
 
 
 
