Zentral sichtbar flexibel nutzbar Gewerbeeinheit mit Lager Kühlung und Aufzug
Informationen zur Immobilie:
Ort
56564 Neuwied
Objektart
Gewerbeobjekt
Größe
ca.
Energieausweis
Verbrauchsausweis
Energieverbrauchkennwert
265,1 kWh/(m²·a) kWh/(m²·a)
EPass gültig bis
22.04.2029
259.000 €
Beschreibung:
Mehr zum Angebot Zentral sichtbar flexibel nutzbar Gewerbeeinheit mit Lager Kühlung und Aufzug:
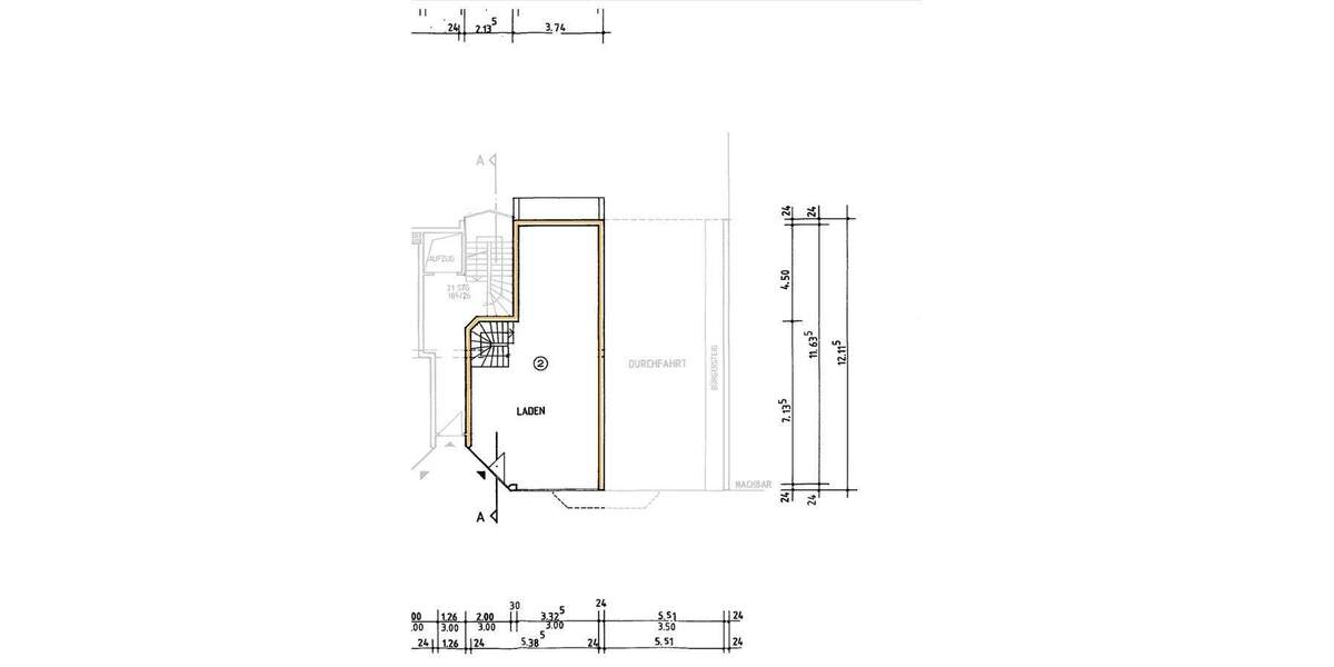
In bester Innenstadtlage von Neuwied wartet hier ein spannendes Gewerbeobjekt mit insgesamt ca. 283 m² Fläche auf seinen nächsten Betreiber oder Kapitalanleger. Das Gebäude stammt aus dem Baujahr 1992 und... mehr erfahren
In bester Innenstadtlage von Neuwied wartet hier ein spannendes Gewerbeobjekt mit insgesamt ca. 283 m² Fläche auf seinen nächsten Betreiber oder Kapitalanleger. Das Gebäude stammt aus dem Baujahr 1992 und... mehr erfahren
weitere Gewerbeobjekte